Samsung

Bogotá…
el origen del desorden y la vivienda de mala calidad
Mateo Martínez *
Para todos aquellos que no sean arquitectos o que no tengan mayor conocimiento acerca del diseño de edificaciones y la planeación de ciudades, pero que se pregunten constantemente por qué Bogotá es una ciudad tan desorganizada, he querido escribir este artículo revelando uno de los factores más significativos en el proceso de deterioro estético de nuestra ciudad. Pues una clave importantísima para comprender este asunto nos es revelada a los estudiantes de arquitectura durante nuestros estudios de historia de la arquitectura en Colombia, por lo que hoy me gustaría contarle al bogotano ‘común y silvestre’ esta y una serie de factores que influyeron en la consolidación de este desorden.

Para empezar, me gustaría resaltar el hecho, desconocido por algunos, de que Colombia SÍ tuvo una época dorada de la planeación urbana en particular a través de la construcción de vivienda.
Esta época se caracterizó por la presencia de instituciones PÚBLICAS que, de la mano de los bancos y de algunos excelentes profesionales, propusieron proyectos de vivienda que hoy parecen mansiones al lado de lo que actualmente nos proponen algunas constructoras privadas.
Autores como Alberto Saldarriaga, actual decano de la Facultad de Arquitectura y Diseño de la U Tadeo y quien posee una impresionante hoja de vida académica y profesional, señala junto a otros arquitectos que “el periodo de oro del urbanismo y de la arquitectura de la vivienda estatal en Colombia se sitúa entonces entre 1942 y 1972 y abarca tanto la acción del ICT como la del BCH, las dos instituciones líderes, cada una en su campo, de la acción estatal.”
Y aunque no me interesa echarle los perros a nadie (y solo resalto la hoja de vida de Saldarriaga en medio de mi indignación por nuestro urbanismo actual regido por el dinero y no por mentes como estas), si me interesa que usted, lector, le eche el ojo y por qué no los perros, a algunas de estas maravillas que se crearon en esta época por intervención del estado.
Ahora bien, antes de que sigamos con el desfile de nuestras modelos arquitectónicas, permítanme explicarles rápidamente quienes eran el ICT y el BCH. Tanto el Instituto de Crédito Territorial (ICT) como el Banco Central Hipotecario (BCH) fueron entidades públicas que se dedicaron por un lado a la financiación de vivienda y por otro lado al fomento de la construcción de vivienda y el desarrollo urbano del país.
Suena como el tipo de cosas que se siguen haciendo hoy en día, pero uno de los aspectos que caracterizó a estas dos entidades fue la auténtica búsqueda académica, profesional y sensible por una arquitectura en todo el sentido de la palabra.
Con respecto a esta “pauta de calidad”, Saldarriaga y sus amigos resaltan nuevamente refiriendose al trabajo del BCH que “la amplia participación de los profesionales colombianos más destacados del urbanismo y de la arquitectura indica el interés de la entidad por auspiciar las inquietudes y por realizar propuestas novedosas espacial y técnicamente.”

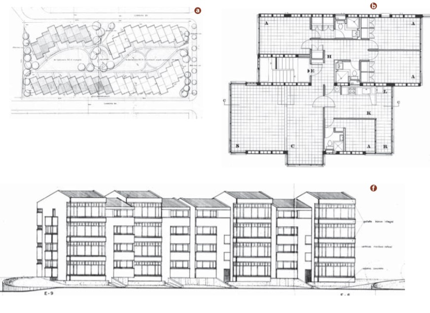
(BCH. Bogotá, Conjunto Calle 26. 1962)



(BCH. Bogotá, Residencias El Parque. 1971)

(ICT. Bogotá, Centro Antonio Nariño. 1958)
Observe detalladamente las imágenes que recopilamos para usted y note, en especial si se ha emprendido en la búsqueda de vivienda en los últimos años, que cosas como la comodidad del espacio en el proyecto de la calle 26, los ventanales y el espacio público en las torres del parque y la predominancia de la zona verde comunal en el Centro Antonio Nariño son cosas que hoy en día definitivamente no se consiguen o no son asequibles para las mayorías en Colombia.
Es lamentable que después de haber construido edificaciones como estas en el marco de acción de entidades estatales, hoy en día se produzca esta cosa que maestros como Le Corbusier nos enseñaron a NO llamar arquitectura, sino mera construcción sin mayor reflexión.
Es terrible que después de más de 80 años de haber sido fundada la primera facultad de arquitectura del país estemos haciendo lo que estamos haciendo.
El llamado al lector es a reconocer que este, al igual que muchos otros problemas de nuestro país, no es un problema técnico o académico, pues en Colombia existen y han existido muy buenas escuelas y muy buenos profesionales.
Estamos ante las consecuencias del deterioro de nuestros valores como sociedad; léase bien, como SOCIEDAD. Pues de eso se trata lo público.
*Arquitecto de la Universidad Nacional con estudios en proyecto arquitectónico y urbano de la Escuela Nacional Superior de Arquitectura de Toulouse, Francia. Actualmente se desempeña como Coordinador Técnico de Instalaciones en Dicta S.A.S.

